Mechelsesteenweg 50, Edegem
Mechelsesteenweg 502650
Property Type
Out-of-town stand-aloneUnit Type
To LetAvailable
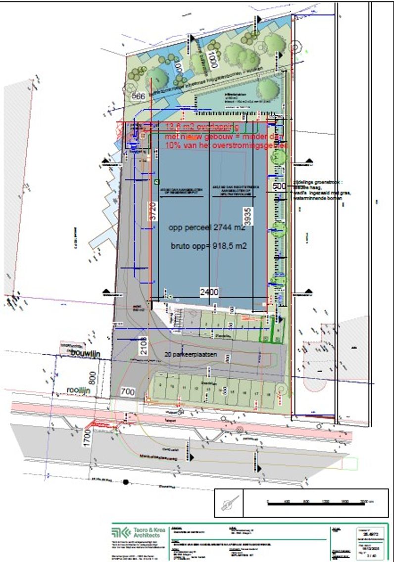
918,5 m2As From
-
Emmanuel de Landtsheer

Out-of-town stand-alone to let, In
This is a new construction project adjacent to the well-known Plusmart site in Edegem, home to HUBO, Dreamland, Bent, Veritas, and Damart, among others.
The new building will have a floor area of 918.50m² and approximately 20 parking spaces. Thanks to its excellent location, the building will enjoy excellent visibility and excellent traffic.
In the immediate vicinity we find other retailers such as JBC, Torfs, E5 mode, Delhaize, Colruyt, Van Haren, Action, ZEB and many others.
The new building will have a floor area of 918.50m² and approximately 20 parking spaces. Thanks to its excellent location, the building will enjoy excellent visibility and excellent traffic.
In the immediate vicinity we find other retailers such as JBC, Torfs, E5 mode, Delhaize, Colruyt, Van Haren, Action, ZEB and many others.
Configuration
| Floor | Unit Type | Floor area |
|---|---|---|
| Unit 1 (Ground floor) | Retail | 918,5 m2 |





